1607 43 Avenue Unit# 304 Lot# Sl 10 Vernon, British Columbia V1T 9R9

3 Bedroom 3 Bathroom 1,284 ft2
Fireplace See Remarks Baseboard Heaters

$479,000

Maintenance, Reserve Fund Contributions, Insurance, Ground Maintenance, Property Management, Other, See Remarks, Waste Removal

$335.24 Monthly

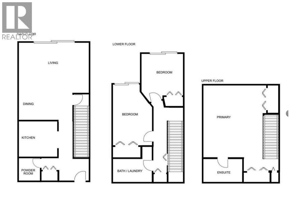
This sensational upgraded condo has a fantastic floor plan. 3 bedrooms,3 bathrooms. On the main level you will find an open layout, kitchen with a sit up breakfast bar, living room with a gas fireplace, a good size balcony overlooking green space and a 2 piece bathroom. On the upper level is a private very large dedicated Primary bedroom with full ensuite. The lower level has walk-out to patio from bedrooms, a full bathroom and stacking laundry. Lots of green space around the townhouse for the kids to play. Nice area of complex and a handy location on a bus route. Perfect share home as main living space between the primary up and 2 bedrooms down. 2 parking stalls. (id:58444)

Property Details

MLS® Number 10360482
Property Type Single Family
Neigbourhood Harwood
Community Name Vernon Springs
Parking Space Total 2
View Type View (panoramic)

Building

Bathroom Total 3
Bedrooms Total 3
Basement Type Full
Constructed Date 1997
Construction Style Attachment Attached
Cooling Type See Remarks
Exterior Finish Vinyl Siding
Fireplace Fuel Gas
Fireplace Present Yes
Fireplace Total 1
Fireplace Type Unknown
Half Bath Total 1
Heating Fuel Electric
Heating Type Baseboard Heaters
Roof Material Asphalt Shingle
Roof Style Unknown
Stories Total 3
Size Interior 1,284 Ft2
Type Row / Townhouse
Utility Water Municipal Water

Parking

Stall

Land

Acreage No
Sewer Municipal Sewage System
Size Total Text Under 1 Acre

Rooms

Level Type Dimensions
Second Level 4pc Ensuite Bath Measurements not available
Second Level Primary Bedroom 15'7'' x 12'10''
Basement Bedroom 8'7'' x 12'10''
Basement 4pc Bathroom Measurements not available
Basement Bedroom 9'1'' x 9'4''
Main Level 2pc Bathroom Measurements not available
Main Level Kitchen 8'0'' x 8'7''
Main Level Living Room 16'9'' x 15'3''

https://www.realtor.ca/real-estate/28778524/1607-43-avenue-unit-304-lot-sl-10-vernon-harwood

Contact Us

Contact us for more information

Generating Captcha

Sandra Bradley

(250) 549-0897
www.redheadrealestate.com/

Royal LePage Downtown Realty
4007 - 32nd Street
Vernon, British Columbia V1T 5P2

(250) 545-5371
(250) 542-3381

Your Favourites

 

No Favourites Found