1837 Shuswap Avenue Lumby, British Columbia V0E 2G0

19,500 ft2
Forced Air, See Remarks Acreage Level

$6,398,000

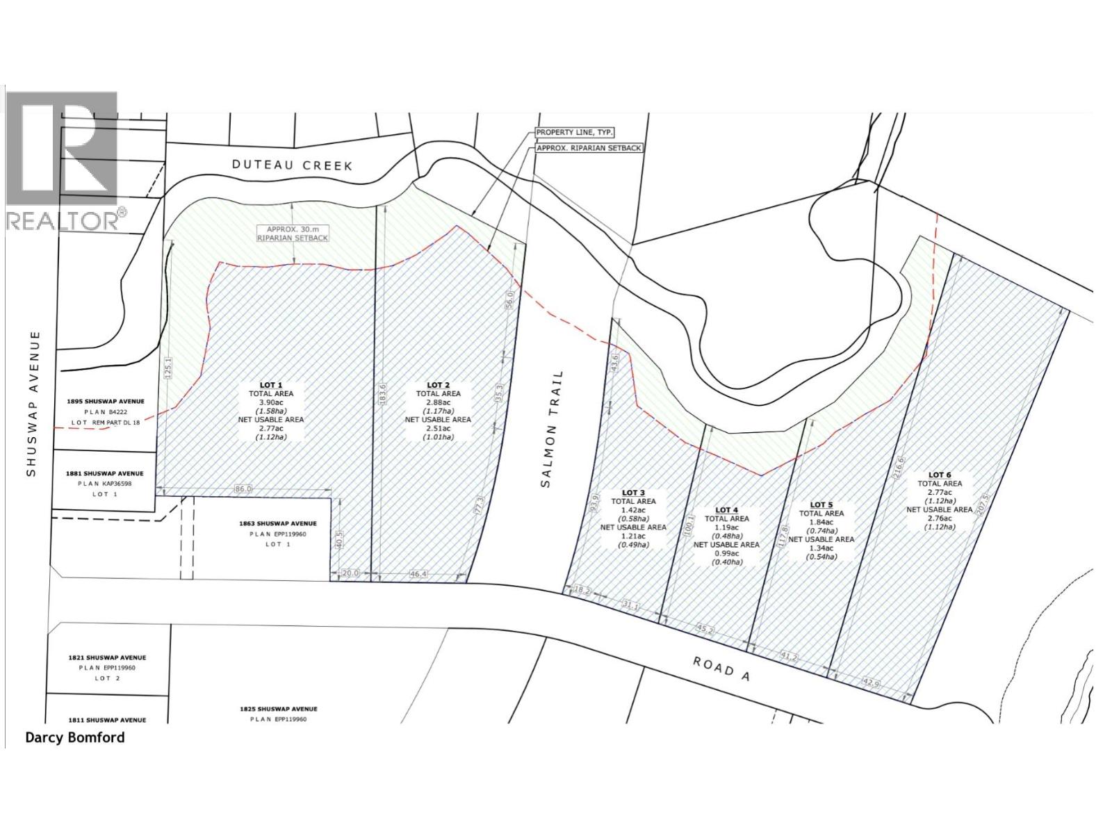
Prime industrial development opportunity – Monashee Light Industrial Park in Lumby. 32.91 acres of I2 Light Industrial land with an approved 6-lot subdivision plus a state-of-the-art 19,500 sq.ft. facility built in 2019 to food/pharmaceutical-grade standards. The building offers municipal water and sewer, 600V 3-phase power and a fully finished main floor with steel-framed second level, designed to GMP specifications for European export. Subdivision has been approved by the Village of Lumby, with full underground services and road construction in progress. Approved lots range from approximately 1.19–3.90 acres (0.99–2.72 net usable acres), providing flexible options for owner-users or developers. This is one of the largest and most strategic industrial offerings in the North Okanagan – level site, municipal services, I2 zoning and excellent access off Hwy 6. Six lots approved: 400,000$ per acre of net usable area • Lot 1: 3.90 acres (1.58 ha), net usable 2.72 acres (1.12 ha) • Lot 2: 2.88 acres (1.17 ha), net usable 2.51 acres (1.01 ha) • Lot 3: 1.42 acres (0.58 ha), net usable 1.21 acres (0.49 ha) • Lot 4: 1.19 acres (0.48 ha), net usable 0.99 acres (0.40 ha) • Lot 5: 1.84 acres (0.74 ha), net usable 1.34 acres (0.54 ha) • Lot 6: 2.77 acres (1.12 ha), net usable 2.72 acres (1.12 ha) (id:58444)

Property Details

MLS® Number 10325344
Property Type Industrial
Neigbourhood Lumby Valley
Community Name Monashee Gateway Industrial
Amenities Near By Recreation, Schools, Shopping
Features Level Lot, Irregular Lot Size

Building

Constructed Date 2019
Exterior Finish Metal
Heating Type Forced Air, See Remarks
Roof Material Other
Roof Style Unknown
Size Interior 19,500 Ft2
Type Other
Utility Water Municipal Water

Land

Access Type Easy Access
Acreage Yes
Current Use Industrial
Land Amenities Recreation, Schools, Shopping
Landscape Features Level
Sewer Municipal Sewage System
Size Irregular 14.5
Size Total 14.5 Ac|10 - 50 Acres
Size Total Text 14.5 Ac|10 - 50 Acres

https://www.realtor.ca/real-estate/27494461/1837-shuswap-avenue-lumby-lumby-valley

Contact Us

Contact us for more information

Generating Captcha

Don Kassa

(250) 549-4161
www.donkassa.com/

RE/MAX Vernon
5603 27th Street
Vernon, British Columbia V1T 8Z5

(250) 549-4161
(250) 549-7007
www.remaxvernon.com/

Your Favourites

 

No Favourites Found