2545 6 Highway Lumby, British Columbia V0E 2G1

6 Bedroom 4 Bathroom 4,114 sqft
Ranch Fireplace Central Air Conditioning, Heat Pump Forced Air, Heat Pump, Other Acreage

$1,299,000

This remarkable 91.5-acre estate in the Lumby area offers a rare opportunity for multi-generational living or income potential. The custom-built, 4100+ sq. ft. rancher-style main home features 7 spacious bedrooms + a den and 4 bathrooms, including a walk-out lower level with a 2000 sq. ft., 4-bed + den in-law suite—previously used as a care facility. With vaulted ceilings, woodwork, a stunning brick fireplace, and a wraparound deck with southern views, the home blends comfort with craftsmanship. The kitchen includes granite counters, timeless cabinetry and both a nook and formal dining area. Recent upgrades include new flooring (2025) and new furnace (2026). A bright 1-bedroom guest house with wood stove and laundry is perfect for family, guests, or rental income. The detached 23x13 heated gym includes commercial rubber flooring and Bluetooth ceiling speakers. Other features: detached garages, carport, domestic well, solar panels, and Telus fibre optic internet in both homes—ideal for remote work. With gently sloping hillside, and benches of flat south-facing land, the property enjoys full sun and expansive views. Ideal for large families, vacation rentals, or care-based business use, with highway frontage and strong long-term value. (id:58444)

Property Details

MLS® Number 10366341
Property Type Single Family
Neigbourhood Lumby Valley
Community Features Pets Allowed
Features Central Island, Jacuzzi Bath-tub, One Balcony
Parking Space Total 9
View Type Mountain View, Valley View, View (panoramic)

Building

Bathroom Total 4
Bedrooms Total 6
Appliances Refrigerator, Dishwasher, Dryer, Range - Electric, Microwave, Washer
Architectural Style Ranch
Basement Type Full
Constructed Date 1977
Construction Style Attachment Detached
Cooling Type Central Air Conditioning, Heat Pump
Exterior Finish Brick, Other
Fireplace Present Yes
Fireplace Total 2
Fireplace Type Insert
Flooring Type Carpeted, Ceramic Tile, Hardwood, Laminate
Half Bath Total 1
Heating Fuel Electric
Heating Type Forced Air, Heat Pump, Other
Roof Material Other
Roof Style Unknown
Stories Total 2
Size Interior 4,114 Sqft
Type House
Utility Water Well

Parking

See Remarks
Additional Parking
Detached Garage 2

Land

Acreage Yes
Fence Type Fence
Sewer Septic Tank
Size Irregular 91.5
Size Total 91.5 Ac|50 - 100 Acres
Size Total Text 91.5 Ac|50 - 100 Acres

Rooms

Level Type Dimensions
Basement Partial Bathroom 5'4'' x 7'3''
Basement Full Bathroom 8'5'' x 7'3''
Basement Laundry Room 6'3'' x 7'3''
Basement Storage 4'8'' x 14'4''
Basement Utility Room 7'1'' x 13'3''
Basement Bedroom 10'8'' x 9'11''
Basement Bedroom 12'4'' x 13'3''
Basement Bedroom 13'3'' x 12'2''
Basement Bedroom 9'6'' x 13'8''
Basement Storage 9'3'' x 13'7''
Basement Kitchen 14'9'' x 30'5''
Basement Family Room 22'9'' x 14'9''
Main Level Other 6'3'' x 5'7''
Main Level 5pc Ensuite Bath 10'4'' x 8'7''
Main Level Full Bathroom 10'4'' x 9'1''
Main Level Office 10'7'' x 10'4''
Main Level Bedroom 15'11'' x 9'7''
Main Level Primary Bedroom 14'10'' x 15'9''
Main Level Foyer 9'9'' x 27'2''
Main Level Dining Room 11'11'' x 13'8''
Main Level Kitchen 20'1'' x 18'0''
Main Level Living Room 23'11'' x 13'11''
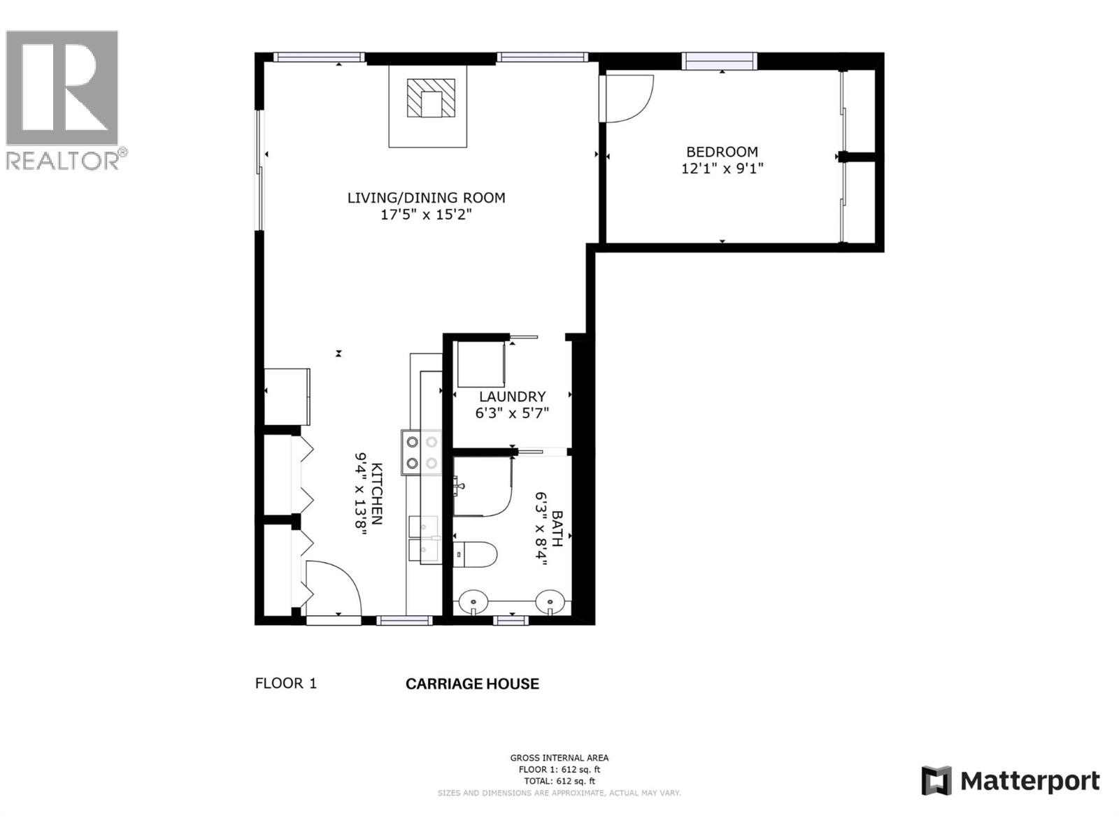
Secondary Dwelling Unit Kitchen 9'4'' x 13'8''
Secondary Dwelling Unit Living Room 17'5'' x 15'2''
Secondary Dwelling Unit Full Bathroom 6'3'' x 8'4''
Secondary Dwelling Unit Bedroom 12'1'' x 9'1''

https://www.realtor.ca/real-estate/29022155/2545-6-highway-lumby-lumby-valley

Contact Us

Contact us for more information

Generating Captcha

Chrysta Cleverley
Personal Real Estate Corporation

(250) 309-1296

Real Broker B.c. Ltd
#1100 - 1631 Dickson Avenue
Kelowna, British Columbia V1Y 0B5

(888) 828-8447
www.onereal.com/

Kevin Woodrow

(604) 819-6751
cleverleyrealestate.com/
www.facebook.com/CleverleyRealEstateGroup

Real Broker B.c. Ltd
#1100 - 1631 Dickson Avenue
Kelowna, British Columbia V1Y 0B5

(888) 828-8447
www.onereal.com/

Your Favourites

 

No Favourites Found