3105 31 Avenue Unit# C Vernon, British Columbia V1T 2G9

1,165 ft2

$17 / ft2

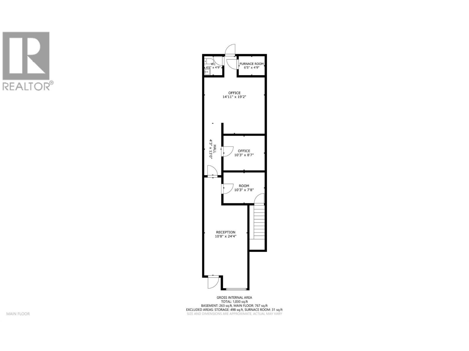
Ground floor unit available to lease by December. Tenant improvements will be factored into lease negotiations. New paint , lighting and possibly flooring will be considered. Amazing location right downtown in the heart of Vernon. Walls can be moved with ease and this unit comes with a bonus space in the basement. Access must be given for one other tenant in the building. Comes with a one parking stall in the back. (id:58444)

Property Details

MLS® Number 10369318
Property Type Other
Neigbourhood City of Vernon

Building

Size Interior 1,165 Ft2
Type Residential Commercial Mix

Land

Acreage No
Current Use Mixed Use
Size Total Text Under 1 Acre

https://www.realtor.ca/real-estate/29119167/3105-31-avenue-unit-c-vernon-city-of-vernon

Contact Us

Contact us for more information

Generating Captcha

Graeme Magee

(250) 306-6690
gmagee.realestate/

Coldwell Banker Executives Realty
102-2901 32 St
Vernon, British Columbia V1T 5M2

(250) 549-2103
(250) 549-2106
thebchomes.com/

Your Favourites

 

No Favourites Found