6924 / 6926 Old Kamloops Road Vernon, British Columbia V1H 1W1

4,500 ft2
Wall Unit Forced Air, Other, See Remarks Acreage

$2,449,000

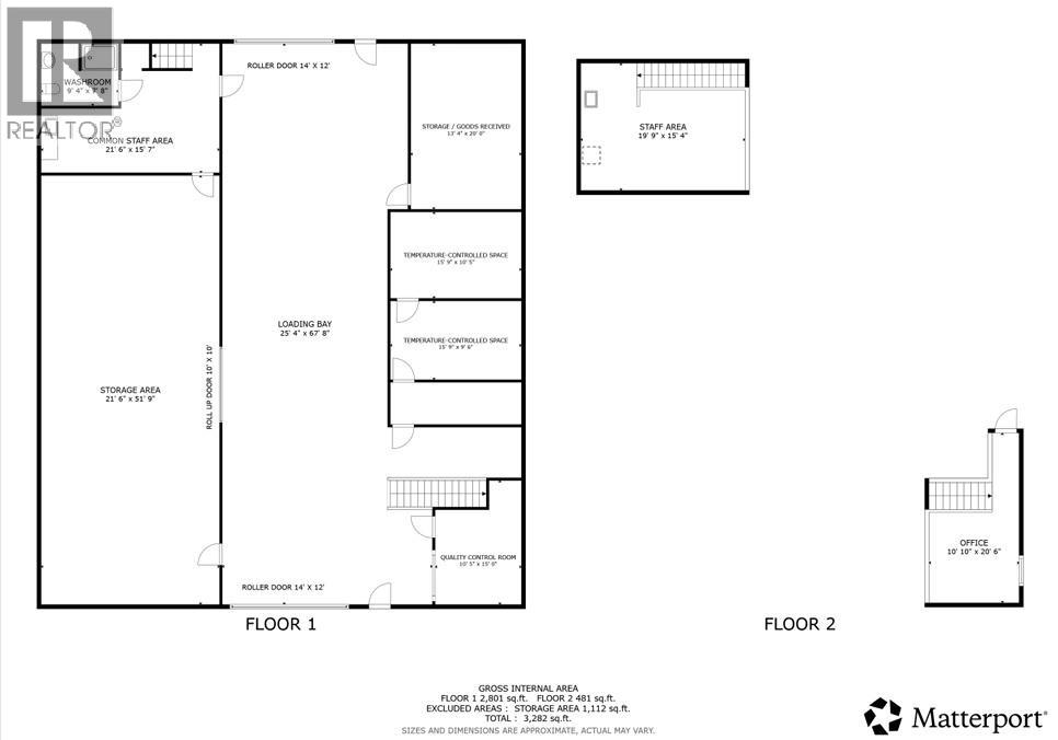
Exceptional 23-acre Swan Lake view property offering two titles, remarkable privacy, and the opportunity to create a signature North Okanagan estate just minutes from Vernon. Surrounded by rolling farmland and prestigious acreage properties, the setting delivers the privacy, scale, and natural beauty that define the North Okanagan lifestyle. Imagine designing a signature residence overlooking Swan Lake with expansive outdoor living spaces, guest accommodations, equestrian facilities, or boutique vineyard potential. What makes this property particularly unique is the significant infrastructure already in place, including 600 amp electrical service, municipal agricultural water, domestic water at the lot line, and a new 1,000 gallon septic system a rare level of servicing for a property of this size so close to town. A beautifully renovated 4,500+ sq.ft. post and frame building offers versatile space for workshops, studio use, agricultural operations, or estate support facilities. In addition, a 1,250 sq.ft. temperature controlled production facility provides secure space for specialty growing or creative ventures. Located within the Agricultural Land Reserve, the property offers long term land security and a range of permitted agricultural and rural uses. With two titles, panoramic Swan Lake views, extensive infrastructure, and a location just five minutes from Vernon’s shops, schools, and amenities, this is a rare opportunity to secure a significant North Okanagan landholding. (id:58444)

Property Details

MLS® Number 10366349
Property Type Other
Neigbourhood Swan Lake West
Amenities Near By Golf Nearby, Park, Recreation, Schools, Shopping, Ski Area
Community Features Rural Setting
Features Private Setting
Parking Space Total 20

Building

Constructed Date 2005
Cooling Type Wall Unit
Exterior Finish Metal
Fire Protection Controlled Entry, Security System
Heating Type Forced Air, Other, See Remarks
Roof Material Metal
Roof Style Unknown
Size Interior 4,500 Ft2
Type Residential Commercial Mix
Utility Water Municipal Water

Parking

Additional Parking
R V

Land

Acreage Yes
Current Use Mixed Use
Land Amenities Golf Nearby, Park, Recreation, Schools, Shopping, Ski Area
Size Irregular 23
Size Total 23 Ac|10 - 50 Acres
Size Total Text 23 Ac|10 - 50 Acres

Utilities

Electricity Available
Telephone Available
Sewer Available
Water Available

https://www.realtor.ca/real-estate/29042175/6924-6926-old-kamloops-road-vernon-swan-lake-west

Contact Us

Contact us for more information

Generating Captcha

Thea Mclaughlin
Personal Real Estate Corporation

(250) 308-5807
farmranchresidential.ca/
www.facebook.com/okanaganproperty4you.ca/?view_public_for=31057487966043

Royal LePage Downtown Realty
4007 - 32nd Street
Vernon, British Columbia V1T 5P2

(250) 545-5371
(250) 542-3381

Patrick Duggan
Personal Real Estate Corporation

(250) 308-0938
www.oklandbuyers.ca/

Royal LePage Downtown Realty
4007 - 32nd Street
Vernon, British Columbia V1T 5P2

(250) 545-5371
(250) 542-3381

Your Favourites

 

No Favourites Found